Zapraszamy do zapoznania się z ofertą nowoczesnego, bezczynszowego lokalu o powierzchni 83,08 m2, zlokalizowanego na parterze kameralnego, dwulokalowego budynku. Jest to idealna propozycja dla osób poszukujących funkcjonalności domu jednorodzinnego w cenie mieszkania.
Wnętrze charakteryzuje się logicznym i niezwykle wygodnym rozkładem pomieszczeń:
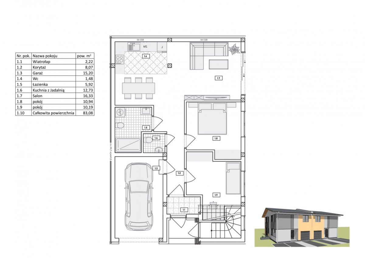
Strefa dzienna: Przestronny salon (16,33 m2) połączony z widną kuchnią i jadalnią (12,73 m2), co tworzy otwartą przestrzeń o powierzchni blisko 30 m2.
Strefa prywatna: Dwie ustawne sypialnie o powierzchniach 10,94 m2 oraz 10,19 m2, zapewniające spokój i intymność.
Zaplecze sanitarne: Duża, komfortowa łazienka (5,92 m2) oraz dodatkowe, oddzielne WC (1,48 m2), co jest ogromnym atutem przy kilku domownikach.
Komunikacja i logistyka: Funkcjonalny wiatrołap (2,22 m2) oraz korytarz (8,07 m2) z miejscem na pojemne szafy wnękowe.
Garaż: Ocieplony, zintegrowany z bryłą budynku (15,20 m2), z bezpośrednim wejściem do części mieszkalnej.
Technologia w służbie oszczędności
Nieruchomość została zaprojektowana z myślą o minimalizacji kosztów eksploatacji. Dzięki zastosowaniu bloczków silikatowych, izolacji grafitowym styropianem Swisspor oraz wełną mineralną Rockwool (30 cm na dachu), budynek cechuje się wybitną charakterystyką energetyczną (EP jedynie 69 kWh/m2rok).
Komfort codziennego życia podnoszą:
Rekuperacja: System wentylacji mechanicznej z odzyskiem ciepła i filtrowaniem powietrza.
Ogrzewanie podłogowe: Zasilane nowoczesnym piecem gazowym marki Vaillant.
Przygotowanie pod fotowoltaikę: Wymiennik CWU z grzałką umożliwia łatwe podłączenie paneli.
Lokalizacja i Ogród
Do mieszkania przynależy prywatny ogródek o powierzchni 61 m2 oraz dodatkowe miejsce postojowe przed budynkiem. Lokalizacja zapewnia błyskawiczny dostęp do Warszawy i centrum handlowego M1 (4 minuty autem), przy jednoczesnym sąsiedztwie lasu (4 minuty pieszo). W promieniu 1,3 km znajduje się pełna infrastruktura: szkoła, przedszkole oraz centrum handlowe Prima Park.
Atuty oferty
Brak czynszu i bardzo niskie koszty ogrzewania.
Oddzielne WC obok głównej łazienki - rzadkość w tym metrażu.
Bezpośrednie przejście z garażu do mieszkania.
Podłączony światłowód - idealny do pracy i rozrywki.
Doskonałe nasłonecznienie strefy dziennej dzięki dużym przeszkleniom.
To oferta dla osób, które nie chcą wybierać między miastem a naturą, a jednocześnie cenią sobie nowoczesne technologie budowlane. Zapraszam do kontaktu w celu umówienia spotkania i osobistej weryfikacji standardu tej inwestycji.
822 492,00 PLN (9 900,00 PLN)
Bezczynszowe 83 m2 z garażem i prywatnym ogrodem
Mieszkanie na sprzedaż,
Marki, gen. Józefa Hallera
Dane szczegółowe
- Typ transakcji: sprzedaż
- Typ nieruchomości: Mieszkanie
- Lokalizacja: Marki, gen. Józefa Hallera
- Powierzchnia:83,08 m2
- Liczba pokoi: 4
- Rok budowy: 2025
- Piętro: 0 z 1
- Numer oferty: 34964548451
- Cena: 822 492,00 PLN
- Cena za m2: 9 900,00 PLN
Kontakt z agentem: BIERNACCY NIERUCHOMOŚCI Sp. z o.o.
BIERNACCY NIERUCHOMOŚCI Sp. z o.o.
Opis nieruchomości
Mapa
Kontakt z agentem
BIERNACCY NIERUCHOMOŚCI Sp. z o.o.